Prohouses presenta en exclusiva esta extraordinaria vivienda de lujo con terraza, plaza de garaje y trastero, diseñada para quienes buscan amplitud, privacidad y las más altas calidades.
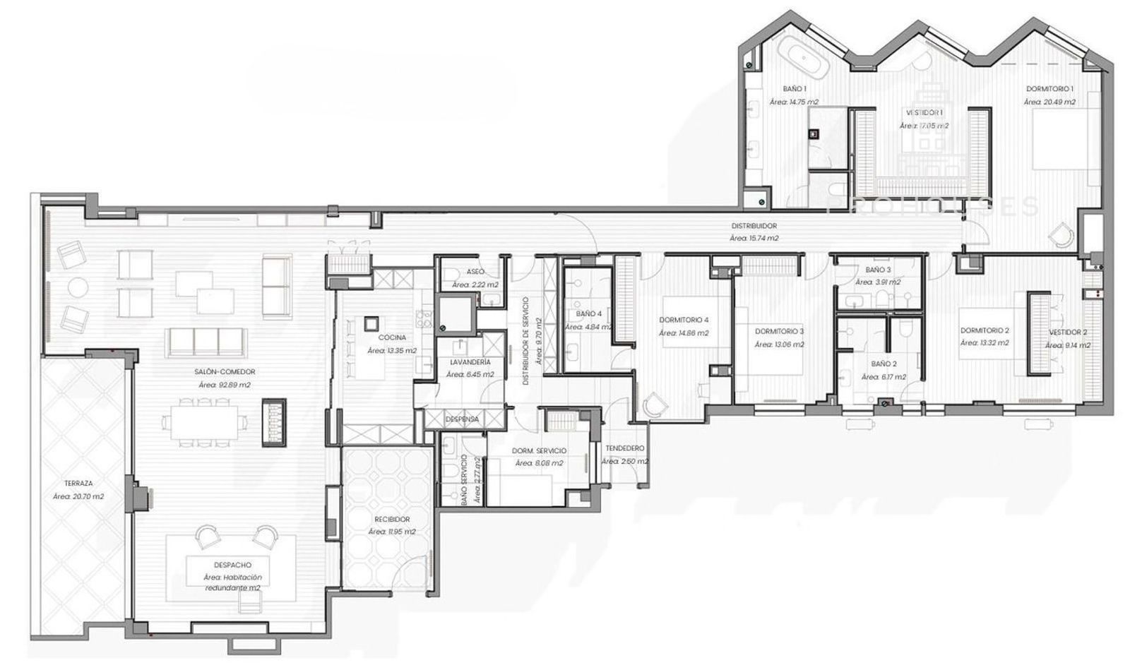
La propiedad cuenta con una superficie aproximada de 400 m² de vivienda, cuidadosamente distribuidos en estancias amplias, luminosas y perfectamente conectadas entre sí. Cada espacio ha sido concebido por nuestro equipo de arquitectos y diseñadores, seleccionando de forma minuciosa materiales, acabados y soluciones técnicas que aportan elegancia, confort y funcionalidad.
Entre sus acabados destaca el pavimento de madera natural, con variación en la dirección de las lamas según la estancia, molduras de inspiración semiclásica en paramentos verticales, iluminación indirecta cuidadosamente integrada y un avanzado sistema de domótica que permite controlar iluminación y persianas motorizadas. La vivienda dispone además de climatización por conductos y carpintería exterior de alta gama Cortizo con sistema RPT, que garantiza un excelente aislamiento térmico y acústico.
Accedemos a la vivienda a través de un elegante hall de entrada con pavimento de mármol, que da paso a un impresionante salón principal de grandes dimensiones, completamente exterior y con salida directa a una magnífica terraza orientada al sur de más de 20 m². Sus amplios ventanales de gran formato permiten una extraordinaria entrada de luz natural durante todo el año. En uno de los extremos del salón encontramos una espectacular vinoteca retroiluminada revestida en madera natural, que acompaña a una distinguida zona de comedor.
Desde el hall también se accede a un elegante despacho exterior, revestido con panelados de madera natural y con salida directa a la terraza, ideal como espacio de trabajo o biblioteca privada.
La cocina, de diseño contemporáneo, se organiza en dos frentes de mobiliario de alta calidad y una elegante isla central de gran formato, integrando electrodomésticos de gama alta completamente panelados para mantener una estética limpia y sofisticada.
La zona de descanso ha sido diseñada con especial atención a la comodidad y la privacidad. La vivienda dispone de cinco dormitorios, de los cuales cuatro son suites con elegantes baños revestidos en piedra natural, grifería empotrada y una iluminación ambiental cuidadosamente estudiada.
Mención especial merece la Master Suite, que incorpora un impresionante vestidor diseñado a medida con gran capacidad de almacenamiento. Su baño, de generosas dimensiones, dispone de ducha enrasada y una elegante bañera exenta, creando un auténtico espacio de bienestar.
El quinto dormitorio está destinado a servicio interno, contando además con zona de plancha y almacenamiento de ropa blanca.
Calidades destacadas:
Suelos de madera natural
Sistema de climatización por conductos con AirZone
Carpintería exterior Cortizo con vidrio laminado de alto aislamiento
Baños revestidos en piedra natural con grifería empotrada
Carpintería interior fabricada a medida
Cocina de primera marca con electrodomésticos de gama alta panelados
Vinoteca de gran capacidad
Las imágenes renderizadas del anuncio corresponden al proyecto actualmente en ejecución, incluido en el precio, con finalización prevista para diciembre.
Superficie total aproximada:
400 m² vivienda y trastero
20 m² de terraza
10 m² plaza de garaje
Una propiedad única donde diseño, calidad y amplitud se unen para crear un hogar verdaderamente excepcional.
Contáctanos para más información o para concertar una visita privada.
Nota: La distribución, acabados y calidades pueden sufrir ligeras variaciones según la dirección facultativa del proyecto. Puede solicitar la memoria completa de calidades a su asesor asignado.